Riom

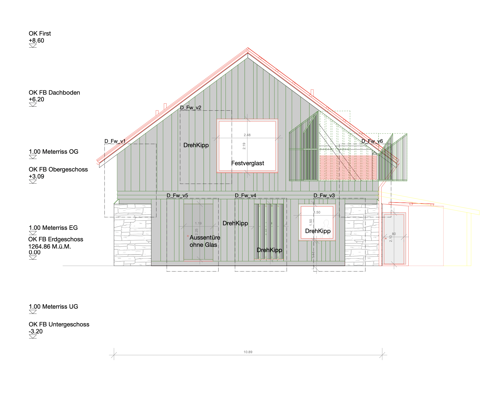
Der Stall in Riom-Parsonz überhalb Savognin steht wie andere Ställe im Dorfkern teils umrundet von bewohnten Häusern. Ihre Grösser übertrifft teilweise die Grösse der bewohnten Häusern. Oft stehen sie mittlerweile eher untergenutzt da, beherbergen im Innern hölzerne historische Objekte die früher unabdingbar waren. Der Umbau von Stall in Wohnung mit Einliegerwohnung wird den Stall auch nach den Arbeiten als Stall aussehen lassen. Es waren nicht nur der Ortsbildschutz der dies so vorgab, es war auch die Idee der Bauherrschaft dass dieses Kulturgut visuell bestehen bleibt. So zieht sich der Umbau hinter die offenen Natursteinecken und unter dem bestehenden Dach zurück, dass diese im Innern wie vom Aussenraum erkennbar bleiben. Das abgedunkelte und verwitterte Holz der Fassaden wird wenn immer möglich wiederverwendet an der Fassade selber. Die meisten Fenster liegen hinter Holzlamellen um den visuellen Aspekt der Stalles beizubehalten. Im Innern werden die beiden Wohneinheiten unterschiedlich behandelt, einmal in Vollholz und einmal im eher urbaneren Stiel mit mineralischen Böden. Die integrierte PV In-Dach-Anlage mit Wärmepumpe geben den neuen Wohnungen eine zeitgemässe Energiegewinnung. Nur wenige sichtbare Fenster lassen erahnen dass das Innere dem alten Äusseren ein neues Leben einhaucht.

Direktauftrag.
Quinten, August 2024

Go back